有限会社 一喜工業 一喜工業ロゴ
ヘッダートップ
トップページに戻る
会社概要へ
業務内容へ
中熱式油化装置へ
自社製品へ
主要工事受付一覧へ
制作実績へ
工事実績へ
主要取引先へ
お問合わせへ
ようこそ一喜工業のホームページへ ヘッダー ヘッダーエンド
spacer
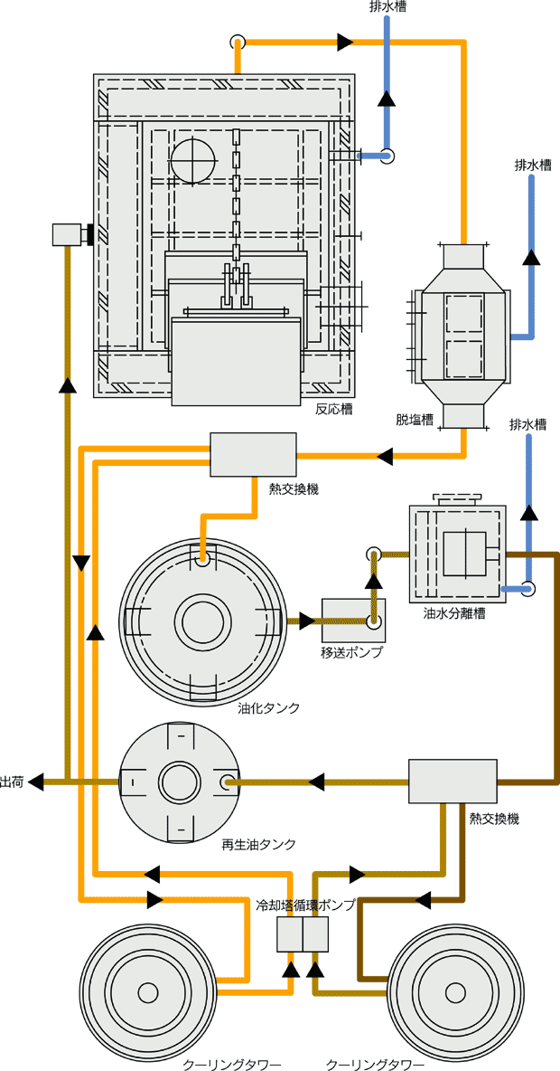
トップページ > 中熱式油化装置 > 06.1日1トンの油化が可能なプラント案
spacer

プラント案

spacer

01.中熱式油化装置「カズキシステム」とは

02.廃プラスチックの油化問題点

03.過熱水蒸気の特徴

04.廃プラスチックの熱分解後に生成される油の分析表

05.実証プラント

06.1日1トンの油化が可能なプラント案

07.よくある質問

08.カズキシステムプラントイメージ
spacer

▲有限会社 一喜工業[中熱式油化装置]06 のトップに戻る

spacer
メニュー下部